Постановление Правительства Москвы от 08.12.2022 N 2767-ПП "Об утверждении проекта планировки территории части производственной зоны N 44 "Братцево"
ПРАВИТЕЛЬСТВО МОСКВЫ
ПОСТАНОВЛЕНИЕ
8 декабря 2022 г. N 2767-ПП
Об утверждении проекта планировки территории части производственной зоны N 44 "Братцево"
В соответствии с Градостроительным кодексом Российской Федерации, Законом города Москвы от 25 июня 2008 г. N 28 "Градостроительный кодекс города Москвы", постановлениями Правительства Москвы от 30 апреля 2019 г. N 449-ПП "Об утверждении Положения о составе, порядке подготовки, согласования и представления на утверждение проектов планировки территории в городе Москве", от 22 марта 2022 г. N 438-ПП "О реализации положений пункта 2 статьи 7 Федерального закона от 14 марта 2022 г. N 58-ФЗ "О внесении изменений в отдельные законодательные акты Российской Федерации" и в целях реализации постановления Правительства Москвы от 19 октября 2021 г. N 1649-ПП "О комплексном развитии территории нежилой застройки города Москвы, расположенной в производственной зоне N 44 "Братцево" Правительство Москвы постановляет:
1. Утвердить проект планировки территории части производственной зоны N 44 "Братцево" (приложение 1).
2. Исключить из состава природных и озелененных территорий Северного административного округа города Москвы объект природного комплекса N 131а "Озелененная территория по адресу: ул. Адмирала Макарова, вл. 2" площадью 0,22 га.
3. Включить в состав природных и озелененных территорий Северного административного округа города Москвы участки территории общей площадью 2,10 га, образовав объект природного комплекса N 131б "Бульвар между Выборгской улицей и Новопетровским проездом" и установив его границы согласно приложению 2 к настоящему постановлению.
4. Внести изменения в постановление Правительства Москвы от 19 января 1999 г. N 38 "О проектных предложениях по установлению границ Природного комплекса с их описанием и закреплением актами красных линий" (в редакции постановления Правительства Москвы от 19 апреля 2016 г. N 181-ПП):
4.1. Пункт 131а раздела "Северный АО" приложения 1 к постановлению признать утратившим силу.
4.2. Раздел "Северный АО" приложения 1 к постановлению дополнить пунктом 131б в редакции согласно приложению 3 к настоящему постановлению.
5. Контроль за выполнением настоящего постановления возложить на заместителя Мэра Москвы в Правительстве Москвы по вопросам градостроительной политики и строительства Бочкарева А.Ю.
Мэр Москвы С.С.Собянин
Приложение 1
к постановлению Правительства Москвы
от 8 декабря 2022 г. N 2767-ПП
Проект планировки территории части производственной зоны N 44 "Братцево"
1. Положение о планировке территории
1.1. Пояснительная записка
Территория в границах подготовки проекта планировки территории площадью 22,01 га расположена в Войковском районе города Москвы и ограничена:
- с севера - местным проездом вдоль Выборгской улицы;
- с востока - территорией ЖК "Головино";
- с юга - Московским центральным кольцом;
- с запада - улицей Адмирала Макарова.
Проектируемая территория подлежит комплексному развитию территории нежилой застройки (далее - КРТ) в соответствии с решением о КРТ, утвержденным постановлением Правительства Москвы от 19 октября 2021 г. N 1649-ПП "О комплексном развитии территории нежилой застройки города Москвы, расположенной в производственной зоне N 44 "Братцево".
В границах подготовки проекта планировки территории расположены коммунально-складские объекты.
В границах подготовки проекта планировки территории расположены: техническая зона инженерных коммуникаций и сооружений, объект природного комплекса N 131а Северного административного округа города Москвы "Озелененная территория по адресу: ул. Адмирала Макарова, вл. 2".
Проектом планировки территории предусматривается освобождение территории в установленном законом порядке с последующим строительством объектов капитального строительства суммарной поэтажной площадью 550,25 тыс.кв.м (N зоны планируемого размещения объекта капитального строительства на чертеже "Планировочная организация территории"), в том числе:
- многоквартирного дома со встроенно-пристроенными нежилыми помещениями и подземным гаражом суммарной поэтажной площадью - 123,45 тыс.кв.м (зона N 1.1);
- многоквартирного дома со встроенно-пристроенными нежилыми помещениями и подземным гаражом с приспособлением его под защитное сооружение гражданской обороны "укрытие" для обеспечения защиты населения в период чрезвычайных ситуаций на 4 650 мест, с установкой электросирены оповещения на кровле здания суммарной поэтажной площадью - 180,06 тыс.кв.м (зона N 2.1);
- многоквартирного дома со встроенно-пристроенными нежилыми помещениями и подземным гаражом суммарной поэтажной площадью - 108,19 тыс.кв.м (зона N 3.1);
- здания офиса продаж суммарной поэтажной площадью - 1,02 тыс.кв.м (зона N 4.1);
- здания образовательной организации на 1 075 мест (дошкольное образование - 325 мест, общее образование - 750 мест) суммарной поэтажной площадью - 25,60 тыс.кв.м (зона N 5.1);
- многоквартирного дома в целях реализации Программы реновации жилищного фонда в городе Москве со встроенно-пристроенными нежилыми помещениями и подземным гаражом с приспособлением его под защитное сооружение гражданской обороны "укрытие" для обеспечения защиты населения в период чрезвычайных ситуаций на 1 800 мест суммарной поэтажной площадью - 90,00 тыс.кв.м (зона N 6.1);
- общественно-делового объекта с физкультурно-оздоровительным комплексом (далее - ФОК) суммарной поэтажной площадью - 21,93 тыс.кв.м (зона N 7.1).
Проектом планировки территории предусматриваются мероприятия по развитию транспортного обслуживания территории (N участка территории на чертеже "Планировочная организация территории"), в том числе:
- строительство улицы местного значения от улицы Адмирала Макарова в направлении к Нарвской улице до проектируемого участка улично-дорожной сети вдоль территории ЖК "Головино" с устройством проезжей части на две полосы движения протяженностью 0,40 км (уточняется на последующих стадиях проектирования) (участок N 9);
- строительство улицы местного значения от улицы Адмирала Макарова до проектируемого проезда вдоль территории ЖК "Головино" с устройством проезжей части на две полосы движения протяженностью 0,38 км (уточняется на последующих стадиях проектирования) (участок N 10);
- устройство 6 наземных пешеходных переходов;
- устройство двух велопарковок.
Число организуемых парковок (парковочных мест) принять равным в соответствии с действующими нормативами.
Вместительность парковок в границах улично-дорожной сети определяется на последующих стадиях проектирования в соответствии с действующими нормативами.
Проектом планировки территории предусматриваются мероприятия по развитию инженерного обеспечения территории (N зоны планируемого размещения объекта капитального строительства на чертеже "Планировочная организация территории"), в том числе:
1) водоснабжение (от напорного трубопровода Северной станции водоподготовки): строительство кольцевой разводящей водопроводной сети Д = 300 мм протяженностью 3,00 км (уточняется на последующих стадиях проектирования);
2) канализование (на Курьяновские очистные сооружения): строительство сетей самотечной канализации Д = 200 - 300 мм протяженностью 2,20 км (уточняется на последующих стадиях проектирования);
3) дождевая канализация (в водосборный бассейн реки Чернушки):
- строительство закрытой сети дождевой канализации Д = 400 - 600 мм протяженностью 2,20 км (уточняется на последующих стадиях проектирования);
- частичная перекладка существующей закрытой сети дождевой канализации Д = 500 - 600 мм протяженностью 0,70 км (уточняется на последующих стадиях проектирования);
4) теплоснабжение (от теплоэлектроцентрали N 21 ПАО "Мосэнерго"): строительство участков тепловых сетей диаметром до 2Д = 300 мм общей протяженностью 1,35 км (уточняется на последующих стадиях проектирования) в двухтрубном исчислении;
5) электроснабжение (от питающих центров ПАО "Россети Московский регион": электрической подстанции (далее - ПС) N 810 "Ленинградская", ПС N 299 "Коптево"):
- строительство распределительной трансформаторной подстанции (далее - РТП) 10 кВ с трансформаторами 2х250 кВА (зона N 8.1);
- прокладка двух питающих кабельных линий 10 кВ от центров питания протяженностью 3,00 км (уточняется на последующих стадиях проектирования);
- строительство одной трансформаторной подстанции (далее - ТП) 10 кВ с трансформаторами 2х1250 кВА и одной ТП 6 кВ с трансформаторами 2х400 кВА (зона N 8.1);
- строительство 7 ТП 10 кВ с трансформаторами 2х1250 кВА;
- прокладка распределительных кабельных линий 10 кВ протяженностью 4,00 км (уточняется на последующих стадиях проектирования);
- переустройство кабельных линий 10 кВ протяженностью 3,20 км (уточняется на последующих стадиях проектирования);
6) газоснабжение: перекладка существующего газопровода Д = 110 мм, Р
0,3 МПа протяженностью 0,50 км (уточняется на последующих стадиях проектирования), пересекающего проектируемую территорию, с выносом из зон планируемого размещения объектов капитального строительства;
7) телефонизация:
- строительство 8-отверстной телефонной канализации с волоконно-оптическими кабелями (далее - ВОК) общей протяженностью 1,20 км (уточняется на последующих стадиях проектирования);
- строительство 4-отверстной телефонной канализации с ВОК протяженностью 0,70 км (уточняется на последующих стадиях проектирования);
- перекладка 1-отверстной телефонной канализации протяженностью 0,40 км (уточняется на последующих стадиях проектирования).
При проведении работ необходимо предусмотреть мероприятия, направленные на сохранность и эксплуатационную надежность существующих инженерных коммуникаций или вынос объектов инженерной инфраструктуры, попадающих в зону проведения работ, а также по установлению границ охранных зон инженерных коммуникаций и сооружений.
Объем работ по перекладке, переустройству и реконструкции существующих сетей с сохранением обеспечения потребителей, строительству новых сетей будет уточняться на последующих стадиях проектирования в соответствии с техническими условиями эксплуатирующих организаций.
Проектом планировки территории предусматриваются мероприятия по охране окружающей среды (N участка на чертеже "Планировочная организация территории"), в том числе:
- шумозащитное остекление многоквартирных домов (участки N 1, 2, 3, 6);
- виброзащита зданий (участки N 1, 2, 3, 4, 6, 7).
Проектом планировки территории предусматриваются мероприятия по благоустройству территории (N участка территории на чертеже "Планировочная организация территории"), в том числе:
- благоустройство и озеленение территории объекта природного комплекса N 131б Северного административного округа города Москвы "Бульвар между Выборгской улицей и Новопетровским проездом" площадью 2,10 га (участки N 11, 12, 13, 14);
- благоустройство и озеленение внутридворовых территорий жилой застройки общей площадью 7,25 га (участки N 1, 2, 3, 6, 15);
- благоустройство территорий общественной застройки общей площадью 0,56 га (участки N 4, 7);
- благоустройство территории объекта образования площадью 1,72 га (участок N 5);
- благоустройство и озеленение общественных пространств, в том числе пешеходных зон, общей площадью 1,08 га (участки N 16, 17, 18);
- благоустройство проездов и мест парковки автомобилей общей площадью 0,26 га (участок N 19);
- благоустройство территорий объектов коммунального назначения общей площадью 0,08 га (участок N 8).
1.2. Таблица "Участки территории и зоны планируемого размещения объектов капитального строительства" к чертежу
"Планировочная организация территории"
| Участки территории | Зоны планируемого размещения объектов капитального строительства | Наименование объекта | Характеристики размещаемых объектов капитального строительства | Примечание, емкость/ мощность | ||||
N участка на чертеже | Площадь участка, га | N зоны на чертеже | Площадь зоны, га | Суммарная поэтажная площадь, тыс.кв.м | Использование подземного пространства | Гостевые, приобъектные автостоянки (наземные), машино-места | ||
1 | 2 | 3 | 4 | 5 | 6 | 7 | 8 | 9 |
1 | 2,62 | 1.1 | 2,62 | Многоквартирный дом со встроенно-пристроенными нежилыми помещениями, в том числе: | 123,45 | Технические помещения, гараж | Определяется на последующей стадии проектирования в соответствии с действующими нормативами | Емкость подземного гаража определяется на последующей стадии проектирования |
жилая часть | 110,89 | |||||||
нежилая часть, в том числе: | 12,56 | |||||||
объекты спорта | Не менее 3,50 | |||||||
предприятия торговли | Не менее 1,39 | |||||||
предприятия бытового обслуживания | Не менее 0,13 | |||||||
2 | 3,78 | 2.1 | 3,78 | Многоквартирный дом со встроенно-пристроенными нежилыми помещениями, в том числе: | 180,06 | Технические помещения, гараж | Определяется на последующей стадии проектирования в соответствии с действующими нормативами | Емкость подземного гаража определяется на последующей стадии проектирования. Приспособление гаража под защитное сооружение гражданской обороны - "укрытие" на 4 650 мест. Установка электросирены оповещения на кровле многоквартирного дома |
жилая часть | 165,27 | |||||||
нежилая часть, в том числе: | 14,79 | |||||||
центр творчества | Не менее 0,37 | |||||||
объекты спорта | Не менее 0,50 | |||||||
предприятия бытового обслуживания | Не менее 0,20 | |||||||
объекты культуры и досуга | Не менее 0,77 | |||||||
дворец детско-юношеского творчества, детская школа искусств | Не менее 1,06 | |||||||
объекты для размещения городских служб | Не менее 0,46 | |||||||
3 | 2,48 | 3.1 | 2,48 | Многоквартирный дом со встроенно-пристроенными нежилыми помещениями, в том числе: | 108,19 | Технические помещения, гараж | Определяется на последующей стадии проектирования в соответствии с действующими нормативами | Емкость подземного гаража определяется на последующей стадии проектирования |
жилая часть | 95,23 | |||||||
нежилая часть, в том числе: | 12,96 | |||||||
предприятия общественного питания | Не менее 0,60 | |||||||
объекты спорта | Не менее 0,54 | |||||||
предприятия бытового обслуживания | Не менее 0,18 | |||||||
женская консультация | Не менее 0,77 | |||||||
4 | 0,27 | 4.1 | 0,27 | Здание офиса продаж | 1,02 | - | Определяется на последующей стадии проектирования в соответствии с действующими нормативами | - |
5 | 2,42 | 5.1 | 2,42 | Здание образовательной организации (дошкольное образование, общее образование) | 25,60 | Технические помещения | Определяется на последующей стадии проектирования в соответствии с действующими нормативами | Дошкольное образование - 325 мест, общее образование - 750 мест |
6 | 2,40 | 6.1 | 2,40 | Многоквартирный дом со встроенно-пристроенными нежилыми помещениями в целях реализации Программы реновации жилищного фонда в городе Москве, в том числе: | 90,00 | Технические помещения, гараж | Определяется на последующей стадии проектирования в соответствии с действующими нормативами | Емкость подземного гаража определяется на последующей стадии проектирования. Приспособление гаража под защитное сооружение гражданской обороны - "укрытие" на 1 800 мест |
жилая часть | 83,25 | |||||||
нежилая часть | 6,75 | |||||||
7 | 0,67 | 7.1 | 0,67 | Общественно-деловой объект с ФОК | 21,93 | Технические помещения, гараж | Определяется на последующей стадии проектирования в соответствии с действующими нормативами | Емкость подземного гаража определяется на последующей стадии проектирования |
8 | 0,09 | 8.1 | 0,09 | РТП, ТП | Определяется на последующей стадии проектирования | В соответствии с технологическим и требованиями | - | - |
9 | 0,52 | - | - | - | - | - | - | - |
10 | 0,52 | - | - | - | - | - | - | - |
11 | 0,06 | - | - | - | - | - | - | - |
12 | 0,13 | - | - | - | - | - | - | - |
13 | 1,05 | - | - | - | - | - | - | - |
14 | 0,86 | - | - | - | - | - | - | - |
15 | 0,01 | - | - | - | - | - | - | - |
16 | 0,04 | - | - | - | - | - | - | - |
17 | 0,63 | - | - | - | - | - | - | - |
18 | 0,54 | - | - | - | - | - | - | - |
19 | 0,26 | - | - | - | - | - | - | - |
20 | 0,61 | - | - | - | - | - | - | - |
21 | 2,05 | - | - | - | - | - | - | - |
1.3. Положения об очередности планируемого развития территории
Реализация мероприятий проекта планировки территории предусматривается в один этап.
Строительство объектов капитального строительства (N зоны планируемого размещения объекта капитального строительства на чертеже "Планировочная организация территории"):
- многоквартирного дома со встроенно-пристроенными нежилыми помещениями и подземным гаражом (зона N 1.1);
- многоквартирного дома со встроенно-пристроенными нежилыми помещениями и подземным гаражом с приспособлением его под защитное сооружение гражданской обороны "укрытие" для обеспечения защиты населения в период чрезвычайных ситуаций на 4 650 мест, с установкой электросирены оповещения на кровле здания (зона N 2.1);
- многоквартирного дома со встроенно-пристроенными нежилыми помещениями и подземным гаражом (зона N 3.1);
- здания офиса продаж (зона N 4.1);
- здания образовательной организации на 1 075 мест (дошкольное образование - 325 мест, общее образование - 750 мест) (зона N 5.1);
- многоквартирного дома в целях реализации Программы реновации жилищного фонда в городе Москве со встроенно-пристроенными нежилыми помещениями и подземным гаражом с приспособлением его под защитное сооружение гражданской обороны "укрытие" для обеспечения защиты населения в период чрезвычайных ситуаций на 1 800 мест (зона N 6.1);
- общественно-делового объекта с ФОК (зона N 7.1).
Развитие транспортного обеспечения территории (N участка территории на чертеже "Планировочная организация территории"):
- строительство улицы местного значения от улицы Адмирала Макарова в направлении к Нарвской улице до проектируемого участка улично-дорожной сети вдоль территории ЖК "Головино" с устройством проезжей части на две полосы движения протяженностью 0,40 км (уточняется на последующих стадиях проектирования) (участок N 9);
- строительство улицы местного значения от улицы Адмирала Макарова до проектируемого проезда вдоль территории ЖК "Головино" с устройством проезжей части на две полосы движения протяженностью 0,38 км (уточняется на последующих стадиях проектирования) (участок N 10);
- устройство 6 наземных пешеходных переходов;
- устройство двух велопарковок.
Развитие инженерного обеспечения территории (N зоны планируемого размещения объектов капитального строительства на чертеже "Планировочная организация территории"):
1) водоснабжение: строительство кольцевой разводящей водопроводной сети Д = 300 мм протяженностью 3,00 км (уточняется на последующих стадиях проектирования);
2) канализование: строительство сетей самотечной канализации Д = 200 - 300 мм протяженностью 2,20 км (уточняется на последующих стадиях проектирования);
3) дождевая канализация:
- строительство закрытой сети дождевой канализации Д = 400 - 600 мм протяженностью 2,20 км (уточняется на последующих стадиях проектирования);
- частичная перекладка существующей закрытой сети дождевой канализации Д = 500 - 600 мм протяженностью 0,70 км (уточняется на последующих стадиях проектирования);
4) теплоснабжение: строительство участков тепловых сетей диаметром до 2Д = 300 мм общей протяженностью 1,35 км (уточняется на последующих стадиях проектирования) в двухтрубном исчислении;
5) электроснабжение:
- строительство РТП 10 кВ с трансформаторами 2х250 кВА (зона N 8.1);
- прокладка двух питающих кабельных линий 10 кВ от центров питания протяженностью 3,00 км (уточняется на последующих стадиях проектирования);
- строительство одной ТП 10 кВ с трансформаторами 2х1250 кВА и одной ТП 6 кВ с трансформаторами 2х400 кВА (зона N 8.1);
- строительство 7 ТП 10 кВ с трансформаторами 2х1250 кВА;
- прокладка распределительных кабельных линий 10 кВ протяженностью 4,00 км (уточняется на последующих стадиях проектирования);
- переустройство кабельных линий 10 кВ протяженностью 3,20 км (уточняется на последующих стадиях проектирования);
6) газоснабжение: перекладка существующего газопровода Д = 110 мм, Р
0,3 МПа протяженностью 0,50 км (уточняется на последующих стадиях проектирования), пересекающего проектируемую территорию, с выносом из зон планируемого размещения объектов капитального строительства;
7) телефонизация:
- строительство 8-отверстной телефонной канализации с ВОК общей протяженностью 1,20 км (уточняется на последующих стадиях проектирования);
- строительство 4-отверстной телефонной канализации с ВОК протяженностью 0,70 км (уточняется на последующих стадиях проектирования);
- перекладка 1-отверстной телефонной канализации протяженностью 0,40 км (уточняется на последующих стадиях проектирования).
Мероприятия по охране окружающей среды (N участка территории на чертеже "Планировочная организация территории"):
- шумозащитное остекление многоквартирных домов (участки N 1, 2, 3, 6);
- виброзащита зданий (участки N 1, 2, 3, 4, 6, 7).
Мероприятия по благоустройству территории (N участка территории на чертеже "Планировочная организация территории"):
- благоустройство и озеленение территории объекта природного комплекса N 131б Северного административного округа города Москвы "Бульвар между Выборгской улицей и Новопетровским проездом" площадью 2,10 га (участки N 11, 12, 13, 14);
- благоустройство и озеленение внутридворовых территорий жилой застройки общей площадью 7,25 га (участки N 1, 2, 3, 6, 15);
- благоустройство территорий общественной застройки общей площадью 0,56 га (участки N 4, 7);
- благоустройство территории объекта образования площадью 1,72 га (участок N 5);
- благоустройство и озеленение общественных пространств, в том числе пешеходных зон, общей площадью 1,08 га (участки N 16, 17, 18);
- благоустройство проездов и мест парковки автомобилей общей площадью 0,26 га (участок N 19);
- благоустройство территорий объектов коммунального назначения общей площадью 0,08 га (участок N 8).

2. Проект межевания территории
2.1. Пояснительная записка
Границы подготовки проекта межевания территории площадью 22,01 га совпадают с границами подготовки проекта планировки территории.
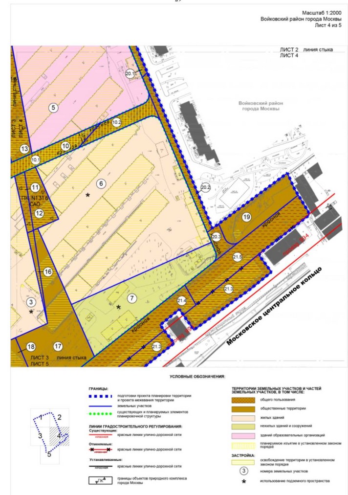
Проектом межевания территории предусматривается образование 21 земельного участка (N участка на чертеже "План межевания территории"), в том числе:
- 5 земельных участков жилых зданий (участки N 1, 2, 3, 6, 15);
- трех земельных участков нежилых зданий и сооружений (участки N 4, 7, 8);
- одного земельного участка здания образовательной организации (участок N 5);
- 8 земельных участков территорий общего пользования (участки N 9, 10, 11, 12, 13, 14, 20, 21);
- 4 земельных участков общественных территорий (участки N 16, 17, 18, 19).
Характеристика земельных участков территории представлена в таблице "Характеристика земельных участков территории" и на чертеже "План межевания территории".
Для реализации планировочных решений, предусмотренных проектом планировки территории, потребуется осуществить изъятие земельных участков в установленном законом порядке в соответствии с чертежом "План межевания территории".
2.2. Таблица "Характеристика земельных участков территории"
к чертежу "План межевания территории"
| Назначение территории | N земельного участка | Адресные ориентиры (при наличии) | Площадь земельного участка, га | Площадь публичных сервитутов, га | Площадь частей образуемых земельных участков, в отношении которых предполагается изъятие в установленном законом порядке для государственных или муниципальных нужд, га | Примечание | |
| 1 | 2 | 3 | 4 | 5 | 6 | 7 | |
| Территории участков жилых зданий | 1 | город Москва, улица Адмирала Макарова | 2,62 | - | - | - | |
| 2 | город Москва, улица Адмирала Макарова | 3,78 | - | - | - | ||
| 3 | город Москва, улица Адмирала Макарова | 2,48 | - | - | - | ||
| 6 | город Москва, улица Адмирала Макарова | 2,40 | - | - | - | ||
| 15 | город Москва, улица Адмирала Макарова | 0,01 | - | - | - | ||
Итого: территории участков жилых зданий | 11,29 | - | - | - | |||
| Территории участков нежилых зданий и сооружений, зданий образовательных организаций | 4 | город Москва, улица Адмирала Макарова | 0,27 | - | - | - | |
| 5 | город Москва, улица Адмирала Макарова | 2,42 | - | - | - | ||
| 7 | город Москва, улица Адмирала Макарова | 0,67 | - | - | - | ||
| 8 | город Москва, улица Адмирала Макарова | 0,09 | - | - | - | ||
Итого: территории участков нежилых зданий и сооружений, зданий образовательных организаций | 3,45 | - | - | - | |||
| Территории общего пользования | 9 | город Москва, улица Адмирала Макарова | 0,52 | 0,51 | - | 0,51 (часть 77:09:0001023:36) | - |
| 0,01 | - | 0,01 (часть 77:09:0001023:5038) | - | ||||
| 10 | город Москва, улица Адмирала Макарова | 0,52 | 0,32 | - | 0,32 (часть 77:09:0001023:36) | - | |
| 0,20 | - | 0,20 (часть 77:09:0001023:5038) | - | ||||
| 11 | город Москва, улица Адмирала Макарова | 0,06 | - | - | - | ||
| 12 | город Москва, улица Адмирала Макарова | 0,13 | - | - | - | ||
| 13 | город Москва, улица Адмирала Макарова | 1,05 | - | - | - | ||
| 14 | город Москва, улица Адмирала Макарова | 0,86 | - | - | - | ||
| 20 | город Москва, улица Адмирала Макарова | 0,61 | 0,43 | - | - | - | |
| 0,13 | - | - | - | ||||
| 0,05 | - | - | - | ||||
| 21 | город Москва, улица Адмирала Макарова | 2,05 | 0,04 | - | - | - | |
| 0,01 | - | - | - | ||||
| 1,14 | - | - | - | ||||
| 0,48 | - | - | - | ||||
| 0,38 | - | - | - | ||||
Итого: территории общего пользования | 5,80 | - | - | - | |||
| Территории участков общественных территорий | 16 | город Москва, улица Адмирала Макарова | 0,04 | - | - | - | |
| 17 | город Москва, улица Адмирала Макарова | 0,63 | - | - | - | ||
| 18 | город Москва, улица Адмирала Макарова | 0,54 | - | - | - | ||
| 19 | город Москва, улица Адмирала Макарова | 0,26 | - | - | - | ||
Итого: территории участков общественных территорий | 1,47 | - | - | - | |||
Всего: | 22,01 | - | - | - | |||

Приложение 2
к постановлению Правительства Москвы
от 8 декабря 2022 г. N 2767-ПП

Приложение 3
к постановлению Правительства Москвы
от 8 декабря 2022 г. N 2767-ПП
Внесение изменения в приложение 1 к постановлению Правительства Москвы от 19 января 1999 г. N 38
ПЕРЕЧЕНЬ
ТЕРРИТОРИЙ ПРИРОДНОГО КОМПЛЕКСА Г. МОСКВЫ
(кроме особо охраняемых природных территорий и объектов Природного комплекса Центрального административного округа)
| N объекта | Наименование объекта Природного комплекса | Режим регулирования градостроительной деятельности | Площадь**, га |
| 1 | 2 | 3 | 4 |
| Северный АО | |||
| 131 б | Бульвар между Выборгской улицей и Новопетровским проездом | Озелененная территория общего пользования | 2,10 |
