Постановление Правительства Москвы от 03.08.2021 N 1217-ПП "Об утверждении проекта планировки территории линейного объекта участка улично-дорожной сети -улица Академика Опарина"
ПРАВИТЕЛЬСТВО МОСКВЫ
ПОСТАНОВЛЕНИЕ
3 августа 2021 г. N 1217-ПП
Об утверждении проекта планировки территории линейного объекта участка улично-дорожной сети - улица Академика Опарина
В соответствии с Градостроительным кодексом Российской Федерации, постановлением Правительства Российской Федерации от 12 мая 2017 г. N 564 "Об утверждении Положения о составе и содержании документации по планировке территории, предусматривающей размещение одного или нескольких линейных объектов", Законом города Москвы от 25 июня 2008 г. N 28 "Градостроительный кодекс города Москвы" Правительство Москвы постановляет:
1. Утвердить проект планировки территории линейного объекта участка улично-дорожной сети - улица Академика Опарина (приложение).
2. Контроль за выполнением настоящего постановления возложить на заместителя Мэра Москвы в Правительстве Москвы по вопросам градостроительной политики и строительства Бочкарева А.Ю.
Мэр Москвы С.С.Собянин
Приложение
к постановлению Правительства Москвы
от 3 августа 2021 г. N 1217-ПП
Проект планировки
территории линейного объекта участка улично-дорожной сети - улица Академика Опарина
1. Графическая часть
1.1.2. Перечень координат характерных точек красных линий
Перечень координат характерных точек красных линии не приводится в связи с отсутствием устанавливаемых красных линий.
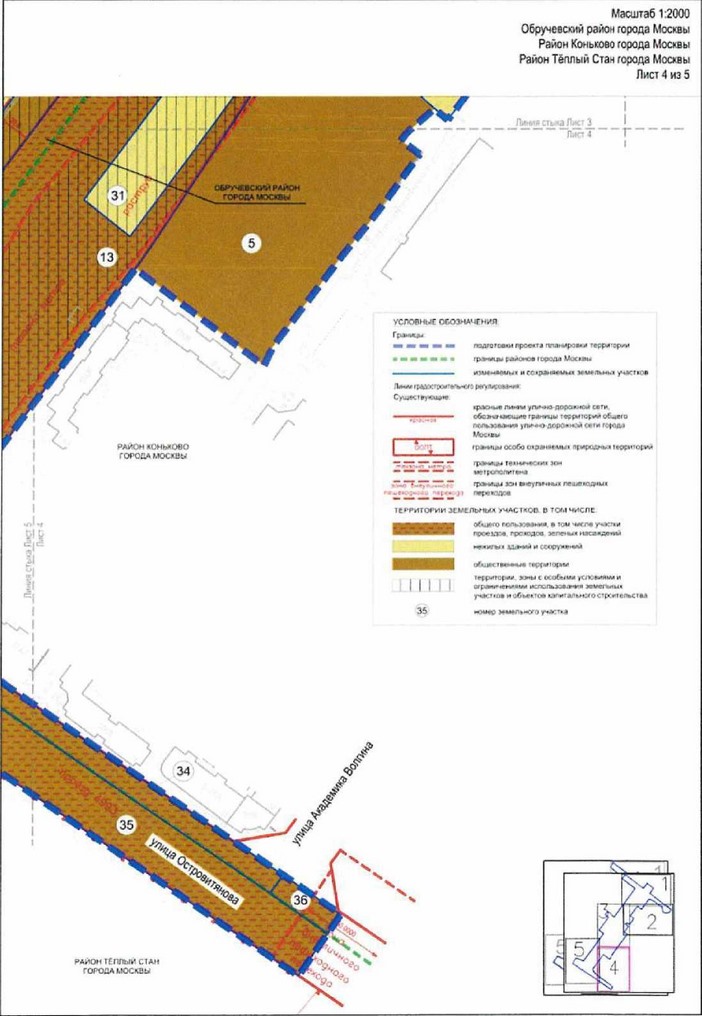
1.5.2. Характеристика земельных участков территории к плану "Межевание территории"
N участка на плане | Кадастровый номер, адресные ориентиры (при наличии) | Земельные участки | Примечание | ||
Коды видов разрешенного использования | Площадь земельного участка в границах подготовки проекта планировки территории, га | Вид ограничения на земельном участке, га | |||
1 | 2 | 3 | 4 | 5 | 6 |
1 | Образуемый земельный участок; проектируемый проезд N 4989 | 7.2.2, 12.0.1 | 0,336 | 0,307 - техническая зона метрополитена; 0,191 - зона внеуличного пешеходного перехода; 0,336 - в красных линиях улично-дорожной сети | |
2 | Часть земельного участка с кадастровым номером 77:06:0006001:139; улица Миклухо-Маклая, владение 21 Б, строение 2 | 12.0.2 | 0,182 | 0,072 - в красных линиях улично-дорожной сети; 0,006 - техническая зона метрополитена; 0,110 - озелененная территория общего пользования; 0,053 - зона внеуличного пешеходного перехода | |
3 | Часть земельного участка с кадастровым номером 77:06:0006001:144; улица Миклухо-Маклая, владение 23 | 2.6, 5.1.2, 3.1.1, 4.9, 3.5.1 | 0,192 | 0,019 - техническая зона метрополитена | |
4 | Часть земельного участка с кадастровым номером 77:06:0006001:11916; улица Миклухо-Маклая, владение 21В | 12.0.2 | 0,026 | 0,026 - озелененная территория общего пользования | |
5 | Общественные территории | 2.6, 5.1.2, 3.1.1, 4.9, 3.5.1 | 3,258 | 0,396 - техническая зона метрополитена; 0,115 - приаэродромная территория; 1,452 - техническая зона инженерных коммуникаций и сооружений | |
6 | Часть земельного участка с кадастровым номером 77:06:0006001:125; улица Миклухо-Маклая | 12.0.1,7.2.2, 7.1.1, 7.1.2, 7.6 | 1,270 | 0,105 - техническая зона метрополитена; 1,270 - в красных линиях улично-дорожной сети | |
7 | Часть земельного участка с кадастровым номером 77:06:0006004:64; улица Миклухо-Маклая | 12.0.1,7.2.2, 7.1.1, 7.1.2, 7.6 | 1,067 | 0,187 - техническая зона метрополитена; 1,067 - в красных линиях улично-дорожной сети | |
8 | 77:06:0006001:11398; улица Миклухо-Маклая, владение 21 Б, строение 1 | 12.0.1,7.2.2, 7.1.1, 7.1.2, 7.6 | 0,004 | 0,004 - в красных линиях улично-дорожной сети; 0,002 - техническая зона метрополитена | |
9 | Часть земельного участка с кадастровым номером 77:06:0006001:123; улица Академика Волгина | Ф1 | 0,105 | 0,105 - в красных линиях улично-дорожной сети | |
10 | Часть земельного участка с кадастровым номером улица Академика Волгина 77:06:0006003:232 | Ф1 | 0,119 | 0,119 - в красных линиях улично-дорожной сети | |
11 | Часть земельного участка с кадастровым номером 77:06:0006004:62; улица Академика Волгина | Ф1 | 0,173 | 0,173 - в красных линиях улично-дорожной сети | |
12 | Часть земельного участка с кадастровым номером 77:06:0006005:229; улица Академика Волгина | Ф1 | 0,192 | 0,192 - в красных линиях улично-дорожной сети | |
13 | Часть земельного участка с кадастровым номером 77:06:0006004:67; улица Академика Опарина | 7.2.2, 12.0.1 | 6,527 | 4,523 - техническая зона метрополитена; 6,527 - в красных линиях улично-дорожной сети | |
14 | Учтенный земельный участок город Москва, улица Академика Опарина | 7.1.2, 7.6, 12.0.1, 7.2.2, 7.1.1 | 0,902 | 0,902 - в красных линиях улично-дорожной сети; 0,902 - техническая зона метрополитена, 0,113 - зона внеуличного пешеходного перехода | |
15 | Учтенный земельный участок город Москва, улица Академика Опарина | 7.1.2, 7.6, 12.0.1, 7.2.2, 7.1.1 | 0,122 | 0,122 - в красных линиях улично-дорожной сети; 0,122 - техническая зона метрополитена | |
16 | Часть земельного участка с кадастровым номером 77:06:0006004:26, улица Миклухо-Маклая, улица Академика Волгина, владение 16/10 | 3.9.3, 6.2, 6.2.1, 6.3, 6.3.1, 6.4, 6.5, 6.6, 6.7, 6.8, 6.11 | 0,047 | 0,047 - в красных линиях улично-дорожной сети | |
17 | Учтенный земельный участок город Москва, улица Академика Опарина | 7.1.2, 7.6, 12.0.1, 7.2.2, 7.1.1 | 0,033 | 0,033 - в красных линиях улично-дорожной сети; 0,033 - техническая зона метрополитена, 0,012 - зона внеуличного пешеходного перехода | |
18 | Учтенный земельный участок город Москва, улица Академика Опарина | 7.1.2, 7.6, 12.0.1, 7.2.2, 7.1.1 | 0,095 | 0,026 - в красных линиях улично-дорожной сети; 0,095 - техническая зона метрополитена; 0,012 - зона внеуличного пешеходного перехода | |
19 | 77:06:0006004:82; улица Миклухо-Маклая, владение 16/10 | 4.1, 4.2, 4.3, 4.4, 4.5, 4.6, 4.8.1, 4.8.2, 4.9, 4.10 | 0,7 | 0,160 - техническая зона метрополитена | 0,07 га - предлагаемый к установлению сервитут |
20 | Учтенный земельный участок город Москва, улица Академика Опарина | 7.1.2, 7.6, 12.0.1, 7.2.2, 7.1.1 | 0,174 | 0,174 - в красных линиях улично-дорожной сети; 0,174 - техническая зона метрополитена | |
21 | Учтенный земельный участок город Москва, улица Академика Опарина | 7.1.2, 7.6, 12.0.1, 7.2.2, 7.1.1 | 0,218 | 0,131 - в красных линиях улично-дорожной сети; 0,218 - техническая зона метрополитена; 0,087 - техническая зона инженерных коммуникаций и сооружений | |
22 | Учтенный земельный участок город Москва, улица Академика Опарина | 7.1.2, 7.6, 12.0.1, 7.2.2, 7.1.1 | 0,02 | 0,003 - в красных линиях улично-дорожной сети; 0,020 - техническая зона метрополитена; 0,017 - техническая зона инженерных коммуникаций и сооружений | |
23 | Часть земельного участка с кадастровым номером 77:06:0006004:11957; улица Миклухо-Маклая | 3.1.1, 3.4.1, 3.5.2 | 1,275 | 0,049 - техническая зона инженерных коммуникаций и сооружений | |
24 | Учтенный земельный участок город Москва, улица Академика Опарина | 7.1.2, 7.6, 12.0.1, 7.2.2, 7.1.1 | 0,124 | 0,077 - в красных линиях улично-дорожной сети; 0,125 - техническая зона метрополитена; 0,047 - техническая зона инженерных коммуникаций и сооружений | |
25 | Учтенный земельный участок город Москва, улица Академика Опарина | 7.1.2, 7.6,12.0.1, 7.2.2, 7.1.1 | 0,1 | 0,100 - техническая зона метрополитена; 0,100 - техническая зона инженерных коммуникаций и сооружений | |
26 | Часть земельного участка с кадастровым номером 77:06:0006004:63; улица Саморы Машела | Ф1 | 0,345 | 0,035 - техническая зона метрополитена; 0,345 - в красных линиях улично-дорожной сети | |
27
| Часть земельного участка с кадастровым номером 77:06:0006004:1001; улица Академика Опарина, владение 4 | Ф1 | 1,396 | 0,021 - техническая зона метрополитена; 0,343 - техническая зона инженерных коммуникаций и сооружений; 0,343 - границы линии застройки | |
28 | 77:06:0006004:1002; улица Академика Опарина, владение 4 | 3.4 | 0,965 | 0,176 - техническая зона инженерных коммуникаций и сооружений; 0,176 - границы линии застройки | |
29 | 77:06:0006004:1003; улица Академика Опарина, напротив владения 6 | 4.9 | 0,413 | 0,027 - техническая зона метрополитена; 0,007 - техническая зона инженерных коммуникаций и сооружений | |
30 | 77:06:0006004:1004; улица Академика Волгина, владение 12-14 | 3.5.2, 3.9.2 | 2,13 | 0,088 - техническая зона метрополитена | |
31 | Учтенный земельный участок город Москва, улица Академика Опарина | 7.1.2, 7.6, 12.0.1, 7.2.2, 7.1.1 | 0,761 | 0,761 - в красных линиях улично-дорожной сети; 0,761 - техническая зона метрополитена; 0,096 - зона внеуличного пешеходного перехода | |
32 | Часть земельного участка с кадастровым номером 77:06:0006004:21; улица Академика Опарина, владение 4 | 3.4 | 0,898 | ||
33 | Учтенный земельный участок город Москва, улица Академика Опарина | 7.1.2, 7.6, 12.0.1, 7.2.2, 7.1.1 | 0,117 | 0,117 - в красных линиях улично-дорожной сети; 0,117 - техническая зона метрополитена | |
34 | Часть земельного участка с кадастровым номером 77:06:0006004:65; улица Островитянова | 12.0.1,7.2.2, 7.1.1, 7.1.2, 7.6 | 1,243 | 0,178 - техническая зона метрополитена; 0,427 - приаэродромная территория; 1,243 - в красных линиях улично-дорожной сети | |
35 | Часть земельного участка с кадастровым номером 77:06:0007002:37; улица Островитянова | 12.0.1,7.1.1, 7.1.2, 7.6, 7.2.2 | 1,538 | 0,156 - техническая зона метрополитена; 0,489 - приаэродромная территория; 1,538 - в красных линиях улично-дорожной сети | |
36 | Часть земельного участка с кадастровым номером 77:06:06005:230; улица Островитянова | 12.0.1,7.1.1, 7.1.2, 7.6, 7.2.2 | 0,048 | 0,048 - в красных линиях улично-дорожной сети | |
37 | Образуемый земельный участок | 7.1.2, 7.6, 12.0.1, 7.2.2, 7.1.1 | 0,096 | 0,096 - в красных линиях улично-дорожной сети; 0,086 - техническая зона метрополитена; 0,051 - зона внеуличного пешеходного перехода | |
38 | 77:06:0006004:14; улица Академика Опарина, владение ЗА | 4.9.1.1 | 0,162 | 0,162 - в красных линиях улично-дорожной сети | 0,162 га - планируемое изъятие в установленном законом порядке |
| ВСЕГО: | 27,14 | ||||
______________________________
1 - Фактическое использование - земельные участки в границах территориальных зон сохраняемого землепользования, для которых в качестве основных видов разрешенного использования земельных участков и объектов капитального строительства устанавливаются виды разрешенного использования упомянутых земельных участков и объектов капитального строительства, сведения о которых содержатся в Едином государственном реестре недвижимости.
2. Положение о размещении линейных объектов
2.1. Наименование, основные характеристики (категория, протяженность, проектная мощность, пропускная способность, грузонапряженность, интенсивность движения) и назначение планируемых для размещения линейных объектов, а также линейных объектов, подлежащих реконструкции в связи с изменением их местоположения
Проект планировки территории линейного объекта участка улично-дорожной сети - улица Академика Опарина подготовлен в соответствии с Законом города Москвы от 5 мая 2010 г. N 17 "О Генеральном плане города Москвы" и на основании распоряжения Москомархитектуры от 9 июля 2020 г. N 969 "О подготовке проекта планировки территории линейного объекта - улично-дорожная сеть от улицы Миклухо-Маклая до улицы Островитянова".
Проектируемая территория расположена в районах: Коньково города Москвы, Тёплый Стан города Москвы, Обручевском районе города Москвы.
Согласно перспективной схеме структуры магистралей Генерального плана города Москвы улица Академика Опарина и улица Миклухо-Маклая являются магистральными улицами районного значения, улица Островитянова - магистральной улицей общегородского значения II класса, улица Саморы Машела - улицей местного значения.
Проектом планировки территории предусматривается:
- реконструкция улицы Академика Опарина;
- строительство участка проектируемого проезда N 4989;
- реконструкция участка улицы Миклухо-Маклая;
- размещение остановочных пунктов наземного городского пассажирского транспорта на улице Академика Опарина и улице Миклухо-Маклая;
- формирование сети пешеходных дорожек, тротуаров и велодорожек, велопарковок и станций велопроката;
- устройство наземных пешеходных переходов;
- благоустройство территории, в том числе устройство пешеходной лестницы на улице Академика Опарина.
При реализации планировочных решений проектом планировки территории предусматриваются мероприятия по благоустройству территории площадью 23,9 га:
- формирование пешеходных зон с устройством тротуаров, озеленением и сетью велодорожек;
- благоустройство улицы Академика Опарина с устройством велодорожки, пешеходной лестницы;
- благоустройство территории на участках реконструируемых инженерных сетей;
- благоустройство территории участка улицы Миклухо-Маклая от улицы Академика Арцимовича до Ленинского проспекта с устройством велодорожки;
- благоустройство территории улиц Академика Волгина и Саморы Машела;
- благоустройство территории участка улицы Островитянова от дома N 19/22 до дома N 1, строение 4 с устройством велодорожки.
Размещение проектируемых остановочных пунктов наземного городского пассажирского транспорта выполняется в границах красных линий улично-дорожной сети в соответствии с действующими нормативами с организацией заездных "карманов" (по возможности) и установкой павильонов ожидания нового типа.
Предложения по обслуживанию рассматриваемой территории наземным городским пассажирским транспортом с учетом корректировки существующих маршрутов и организации новых, с указанием частоты движения и расчета выпуска подвижного состава на маршруты, с уточнением мест размещения остановок будут уточняться на последующих стадиях проектирования.
В соответствии с СП 396.1325800.2018 "Улицы и дороги населенных пунктов. Правила градостроительного проектирования" пропускная способность проектируемых участков улично-дорожной сети (в одном направлении) составит:
- улица Академика Опарина: 1520 - 2160 приведенных единиц в час в одном направлении;
- улица Миклухо-Маклая: 1520 приведенных единиц в час в одном направлении;
- улица Островитянова: 1520 приведенных единиц в час в одном направлении;
- улица Саморы Машела: 800 приведенных единиц в час в одном направлении.
В соответствии с расчетами транспортной модели Москвы и Московского региона, созданной на базе лицензионного программного комплекса "ЕММЕ", интенсивность движения транспорта проектируемых участков улично-дорожной сети (в одном направлении) составит:
- улица Академика Опарина: 1560 - 2080 приведенных единиц в час пик в одном направлении;
- улица Миклухо-Маклая: 330 - 1310 приведенных единиц в час пик в одном направлении;
- улица Островитянова: 1250 - 1840 приведенных единиц в час пик в одном направлении;
- улица Саморы Машела: 110 - 400 приведенных единиц в час пик в одном направлении.
Проектом планировки территории предусматриваются следующие мероприятия по развитию инженерной инфраструктуры территории:
- переустройство существующих инженерных коммуникаций (водопровода, канализации, сетей дождевой канализации, теплосети, телефонной канализации, кабельных линий электроснабжения, освещения, сооружений уличного освещения);
- строительство трассы дождевой канализации Д=400 мм;
- строительство трассы дождевой канализации Д=500 мм;
- переустройство трассы дождевой канализации Д=400 мм;
- переустройство трассы дождевой канализации Д=500 мм;
- переустройство трассы дождевой канализации Д=600 мм;
- переустройство трассы дождевой канализации Д=800 мм;
- перекладка теплосети 2Д=400 мм;
- перекладка теплосети 2Д=500 мм;
- перекладка водопровода Д=100 мм;
- перекладка водопровода Д=300 мм;
- перекладка водопровода Д=400 мм;
- перекладка водопровода Д=500 мм;
- перекладка канализации Д=200 мм;
- перекладка сети уличного освещения;
- перекладка электрических сетей 0,4 - 20 кВ;
- перекладка 1,12,24-отверстной телефонной канализации, а также кабелей волоконно-оптических линий связи;
- обеспечение мероприятий по сохранности канализации Д=2500 мм;
- обеспечение мероприятий по сохранности канализации Д=1000 мм.
Проектом планировки территории предусмотрено проведение мероприятий по сохранению с обеспечением эксплуатационной надежности, реконструкции существующих инженерных коммуникаций, попадающих в зону проведения работ, либо переустройство таких коммуникаций
Объем работ по перекладке, переустройству и реконструкции существующих сетей с сохранением обеспечения потребителей и строительству новых сетей будет уточняться на последующих стадиях проектирования в соответствии с техническими условиями эксплуатирующих организаций.
В целях реализации планировочных решений потребуется осуществить в установленном законом порядке изъятие земельных участков правообладателей в соответствии с планом "Межевание территории".
Основные планировочные характеристики проекта планировки территории линейного объекта
N | Перечень основных планировочных характеристик | Содержание планировочных характеристик |
1 | 2 | 3 |
1 | Основание подготовки проекта планировки | 1. Закон города Москвы от 5 мая 2010 г. N 17 "О Генеральном плане города Москвы". 2. Распоряжение Москомархитектуры от 9 июля 2020 г. N 969 "О подготовке проекта планировки территории линейного объекта - улично-дорожная сеть от улицы Миклухо-Маклая до улицы Островитянова" |
2 | Перечень проектов планировки территории, выполненных на прилегающую территорию | 1. Постановление Правительства Москвы от 16 апреля 2013 г. N 246-ПП "Об утверждении проекта планировки участка линейного объекта улично-дорожной сети - улицы Островитянова на участке от Ленинского проспекта до Профсоюзной улицы для осуществления реконструкции с устройством трех пешеходных переходов". 2. Постановление Правительства Москвы от 3 сентября 2018 г. N 1029-ПП "Об утверждении проекта планировки территории линейного объекта - участок проектируемой линии метрополитена от проектируемой станции "Улица Новаторов" до проектируемой станции "Славянский мир" с размещением транспортно-пересадочных узлов" |
3 | Категория линейного объекта | Улица Островитянова - магистральная улица общегородского значения 11 класса. Улица Академика Опарина, улица Миклухо-Маклая - магистральные улицы районного значения. Улица Саморы Машела - улица местного значения |
4 | Вид работ | Строительство, реконструкция |
5 | Краткое описание транспортно-планировочного решения | Строительство и реконструкция улично-дорожной сети, благоустройство территории |
6 | Планировочные показатели линейного объекта | |
6.1 | Улица Академика Опарина | Реконструкция |
Протяженность рассматриваемого участка | 1100,0 м | |
Количество полос движения | 2 - 3 в каждом направлении | |
Движение наземного городского пассажирского транспорта | Предусматривается | |
Остановочные пункты наземного городского пассажирского транспорта | Предусматриваются | |
| Тротуары | Пешеходные | |
6.2 | Проектируемый проезд N 4989 | Строительство |
Протяженность рассматриваемого участка | 100,0 м | |
Движение наземного городского пассажирского транспорта | Не предусматривается | |
Остановочные пункты наземного городского пассажирского транспорта | Не предусматриваются | |
Тротуары | Пешеходные | |
6.3 | Улица Миклухо-Маклая | Реконструкция |
Протяженность рассматриваемого участка | 100,0 м | |
Движение наземного городского пассажирского транспорта | Предусматривается | |
Остановочные пункты наземного городского пассажирского транспорта | Предусматриваются | |
Тротуары | Пешеходные | |
7 | Организация движения транспорта и пешеходов | Средства организации движения транспорта и пешеходов предусматриваются в соответствии с требованиями СП 42.13330.2011 "Градостроительство. Планировка и застройка городских и сельских поселений", в том числе для маломобильных групп населения в соответствии с СП 59.13330.2012 "Доступность зданий и сооружений для маломобильных групп населения". В местах пересечения пешеходных путей с проезжей частью улиц и дорог предусматривается пониженный борт |
7.1 | Светофорные объекты | Предусматриваются |
7.2 | Внеуличные пешеходные переходы | Не предусматриваются |
7.3 | Наземные пешеходные переходы | Предусматриваются |
8 | Благоустройство и озеленение | Комплексное благоустройство и озеленение участков территории площадью 23,9 га |
2.2. Перечень субъектов Российской Федерации, перечень муниципальных районов, городских округов в составе субъектов Российской Федерации, перечень поселений, населенных пунктов, внутригородских территорий городов федерального значения, на территориях которых устанавливаются зоны планируемого размещения линейных объектов
Зоны планируемого размещения линейного объекта и зоны планируемого размещения линейных объектов, подлежащих реконструкции в связи с изменением их местоположения, расположены в районе Теплый Стан города Москвы, Обручевском районе города Москвы и районе Коньково города Москвы.
2.3. Перечень координат характерных точек границ зон планируемого размещения линейных объектов
N точки | Координаты точек (Московская система координат) | |
X | Y | |
1 | -2665.38 | -80.30 |
2 | -2714.96 | 32.11 |
3 | -2715.68 | 34.52 |
4 | -2715.77 | 37.02 |
5 | -2714.92 | 40.25 |
6 | -2713.61 | 42.39 |
7 | -2711.81 | 44.14 |
8 | -1941.75 | 622.07 |
9 | -1937.80 | 624.38 |
10 | -1933.42 | 625.73 |
11 | -1928.09 | 626.00 |
12 | -1923.60 | 625.11 |
13 | -1918.78 | 622.80 |
14 | -1886.35 | 601.55 |
15 | -1878.52 | 595.73 |
16 | -1870.53 | 588.39 |
17 | -1863.38 | 58024 |
18 | -1772.53 | 459.22 |
19 | -1736.53 | 486.24 |
20 | -1883.09 | 681.51 |
21 | -1886.37 | 687.04 |
22 | -1887.73 | 692.89 |
23 | -1887.45 | 698.15 |
24 | -1885.47 | 703.82 |
25 | -1882.58 | 708.08 |
26 | -1879.07 | 710.98 |
27 | -1840.10 | 739.74 |
28 | -1870.04 | 779.54 |
29 | -1909.24 | 750.06 |
30 | -1914.35 | 747.25 |
31 | -1918.88 | 746.11 |
32 | -1923.40 | 746.04 |
33 | -1929.22 | 747.52 |
34 | -1934.92 | 751.15 |
35 | -1939.95 | 757.28 |
36 | -2119.56 | 996.59 |
37 | -2151.57 | 972.56 |
38 | -2157.83 | 928.78 |
39 | -2142.24 | 902.85 |
40 | -2094.07 | 895.99 |
41 | -2030.74 | 811.56 |
42 | -2025.29 | 803.06 |
43 | -2020.27 | 793.02 |
44 | -2016.40 | 782.49 |
45 | -1993.40 | 703.91 |
46 | -1992.62 | 697.38 |
47 | -1993.99 | 690.95 |
48 | -1997.62 | 685.04 |
49 | -2000.59 | 682.30 |
50 | -2473.16 | 327.64 |
51 | -2512.81 | 298.33 |
52 | -2613.09 | 231.92 |
53 | -2770.49 | 113.86 |
54 | -2773.92 | 111.48 |
55 | -2779.59 | 109.29 |
56 | -2785.66 | 108.90 |
57 | -2791.56 | 110.36 |
58 | -2795.47 | 112.52 |
59 | -2833.77 | 142.30 |
60 | -2842.14 | 150.34 |
61 | -2850.10 | 160.08 |
62 | -2934.76 | 283.19 |
63 | -2974.58 | 342.64 |
64 | -3009.06 | 318.93 |
65 | -2712.50 | -112.41 |
2.4. Перечень координат характерных точек границ зон планируемого размещения линейных объектов, подлежащих реконструкции в связи с изменением их местоположения
N точки | Координаты точек (Московская система координат) | |
X | Y | |
1 | -2747.9279 | -46.1104 |
2 | -2702.7164 | -14.2399 |
3 | -2709.5369 | -4.9208 |
4 | -2715.511 | 4.235 |
5 | -2720.7074 | 25.0784 |
6 | -2637.6601 | 86.9709 |
7 | -2633.4475 | 89.6175 |
8 | -2627.5785 | 82.493 |
9 | -2623.7427 | 85.1992 |
10 | -2630.2922 | 94.1605 |
11 | -2593.0261 | 121.0214 |
12 | -2594.274 | 122.6372 |
13 | -2591.2131 | 124.9427 |
14 | -2589.5192 | 122.7494 |
15 | -2587.551 | 124.164 |
16 | -2554.8214 | 148.7428 |
17 | -2556.9269 | 154.086 |
18 | -2483.7376 | 207.261 |
19 | -2439.3401 | 240.3425 |
20 | -2425.4482 | 247.984 |
21 | -2414.4232 | 232.8868 |
22 | -2407.8562 | 237.3772 |
23 | -2416.0054 | 248.5582 |
24 | -2403.521 | 257.8149 |
25 | -2384.5986 | 271.4812 |
26 | -2382.798 | 271.4469 |
27 | -2380.2516 | 268.1125 |
28 | -2326.0603 | 308.6079 |
29 | -2320.8702 | 306.8251 |
30 | -2315.4384 | 310.9014 |
31 | -2310.7711 | 314.6439 |
32 | -2304.2946 | 319.5396 |
33 | -2304.6859 | 320.0578 |
34 | -2300.3183 | 323.5179 |
35 | -2301.0358 | 324.4236 |
36 | -2299.86 | 325.355 |
37 | -2298.84 | 324.689 |
38 | -2297.68 | 323.186 |
39 | -2292.2288 | 327.4068 |
40 | -2293.2689 | 328.7827 |
41 | -2296.7707 | 333.7075 |
42 | -2301.0307 | 339.1436 |
43 | -2255.4146 | 373.1242 |
44 | -2251.5606 | 370.0153 |
45 | -2237.1802 | 350.1611 |
46 | -2237.1 | 347.63 |
47 | -2230.5151 | 338.796 |
48 | -2229.3465 | 338.8861 |
49 | -2227.0401 | 335.7987 |
50 | -2225.9111 | 336.6814 |
51 | -2218.3411 | 326.6814 |
52 | -2206.6689 | 335.383 |
53 | -2216.8874 | 349.2244 |
54 | -2205.5069 | 374.5416 |
55 | -2217.2423 | 390.3863 |
56 | -2180.8838 | 417.7416 |
57 | -2183.4037 | 420.8381 |
58 | -1919.311 | 520.659 |
59 | -1889.4199 | 642.1283 |
60 | -1857.9471 | 618.4593 |
61 | -1851.615 | 622.9961 |
62 | -1866.0735 | 642.2053 |
63 | -1858.5772 | 648.6476 |
64 | -1860.9088 | 651.9319 |
65 | -1865.958 | 658.4819 |
66 | -1882.988 | 681.5896 |
67 | -1869.9757 | 691.1794 |
68 | -1883.5392 | 709.1886 |
69 | -1869.5943 | 719.2443 |
70 | -1873.4865 | 725.1532 |
71 | -1875.37 | 727.5 |
72 | -1865.9223 | 735.0526 |
73 | -1863.177 | 731.6324 |
74 | -1842.3894 | 746.2392 |
75 | -1846.0551 | 750.7668 |
76 | -1839.507 | 755.604 |
77 | -1865.8255 | 789.7169 |
78 | -1911.1008 | 757.2332 |
79 | -1929.9606 | 751.8658 |
80 | -1940.7615 | 764.9211 |
81 | -1950.5692 | 777.9314 |
82 | -1952.3741 | 778.4673 |
83 | -2006.0413 | 845.3633 |
84 | -2024.0826 | 831.8302 |
85 | -2024.6239 | 802.1445 |
86 | -2020.8672 | 794.7248 |
87 | -2009.8335 | 780.0536 |
88 | -2003.9384 | 767.1718 |
89 | -1997.5484 | 728.456 |
90 | -1993.4901 | 705.5688 |
91 | -2003.4459 | 687.4934 |
92 | -2015.5459 | 677.9505 |
93 | -1993.318 | 646.6398 |
94 | -2025 0416 | 623.7365 |
95 | -2024.7006 | 623.2341 |
96 | -2023.3903 | 616.8937 |
97 | -2041.16 | 603.715 |
98 | -2087.0141 | 570.166 |
99 | -2214.3711 | 474.1939 |
100 | -2250 | 446.7926 |
101 | -2254.4531 | 447.1646 |
102 | -2272.7814 | 433.4714 |
103 | -2292.9848 | 459.7502 |
104 | -2270.2163 | 476.7605 |
105 | -2261.2275 | 505.663 |
106 | -2271.2907 | 508.3468 |
107 | -2276.573 | 480.297 |
108 | -2302.5397 | 460.0372 |
109 | -2349.4937 | 424.9678 |
110 | -2383.2853 | 399.191 |
111 | -2396.4136 | 417.6751 |
112 | -2415.2279 | 404.6654 |
113 | -2399.8931 | 382.7807 |
114 | -2405.4162 | 378.4783 |
115 | -2422.5038 | 365.8128 |
116 | -2411.6401 | 351.5723 |
117 | -2478.0685 | 301.5382 |
118 | -2466.7341 | 286.3924 |
119 | -2464.6577 | 283.0144 |
120 | -2514.6199 | 246.8333 |
121 | -2589.0686 | 190.3325 |
122 | -2645.9148 | 148.8658 |
123 | -2767.964 | 59.393 |
124 | -2798.0822 | 105.5491 |
125 | -2807.4882 | 118.2451 |
126 | -2850.3775 | 87 8976 |
127 | -2812.8485 | 33 3096 |
128 | -2776.883 | -18.7238 |
129 | -2766.7232 | -33.7856 |
130 | -2754.9809 | -50.867 |
2.5. Предельные параметры разрешенного строительства, реконструкции объектов капитального строительства, входящих в состав линейных объектов, в границах зон их планируемого размещения
В составе линейного объекта отсутствуют объекты капитального строительства.
2.6. Мероприятия по защите сохраняемых объектов капитального строительства (зданий, строений, сооружений, объектов, строительство которых не завершено), существующих и строящихся на момент подготовки проекта планировки территории, а также объектов капитального строительства, планируемых к строительству в соответствии с ранее утвержденной документацией по планировке территории, от возможного негативного воздействия в связи с размещением линейных объектов
Мероприятия по защите сохраняемых объектов капитального строительства (зданий, строений, сооружений, объектов, строительство которых не завершено), существующих и строящихся на момент подготовки проекта планировки территории, а также объектов капитального строительства, планируемых к строительству в соответствии с ранее утвержденной документацией по планировке территории, от возможного негативного воздействия в связи с размещением линейных объектов должны быть предусмотрены на следующих стадиях проектирования.
2.7. Мероприятия по сохранению объектов культурного наследия от возможного негативного воздействия в связи с размещением линейных объектов
В границах подготовки настоящего проекта планировки территории объекты культурного наследия не выявлены.
В соответствии с пунктами 2 и 3 статьи 36 Федерального закона от 25 июня 2002 г. N 73-ФЗ "Об объектах культурного наследия (памятниках истории и культуры) народов Российской Федерации" изыскательские, проектные, земляные, строительные и иные работы будут проводиться при условии реализации согласованных соответствующим органом охраны объектов культурного наследия обязательных разделов об обеспечении сохранности объектов культурного наследия, выявленных объектов культурного наследия в проектах проведения таких работ или проектах обеспечения сохранности указанных объектов, включающих оценку проводимых работ на указанные объекты культурного наследия.
В случае выявления воздействия планируемых работ на объекты культурного наследия, выявленные объекты культурного наследия в составе проектной документации необходимо предусмотреть раздел, обосновывающий меры по обеспечению их сохранности, который в соответствии со статьей 30 Федерального закона от 25 июня 2002 г. N 73-ФЗ "Об объектах культурного наследия (памятниках истории и культуры) народов Российской Федерации" подлежит историко-культурной экспертизе.
Проектирование и проведение земляных, строительных, мелиоративных, хозяйственных и иных работ на территории подготовки проекта планировки территории будет осуществляться по результатам государственной историко-культурной экспертизы земельных участков, подлежащих воздействию указанных работ, проводимой в установленном порядке путем археологической разведки, с оформлением научного отчета о проведенных археологических работах на исследуемой территории.
2.8. Мероприятия по охране окружающей среды
Для обеспечения устойчивости геологической среды и проектируемого линейного объекта при реализации планировочных решений следует предусмотреть:
- водопонижение при строительстве ниже уровня грунтовых вод;
- устройство дренажных систем (при необходимости) с целью защиты автодорожного полотна от грунтовых вод;
- отвод поверхностного стока с улично-дорожной сети закрытой системой ливнестоков.
На последующей стадии проектирования необходимо провести инженерно-экологические изыскания участков в границах зон планируемого размещения линейных объектов.
Для всех нормируемых зданий, вновь размещаемых вдоль проектируемых и реконструируемых участков улиц и проездов в соответствии с действующими нормативными документами, определяющими правила и нормы проектирования в городе Москве, должны быть предусмотрены мероприятия, обеспечивающие соблюдение санитарных требований к допустимым уровням шума при разработке проектной документации этих объектов.
2.9. Мероприятия по защите территории от чрезвычайных ситуаций природного и техногенного характера, в том числе по обеспечению пожарной безопасности и гражданской обороны
Мероприятия по обеспечению гражданской обороны проектом планировки территории не предусмотрены, установка электросирен оповещения не предусматривается, размещение защитных сооружений гражданской обороны не предусматривается.
2.10. Перечень зон планируемого размещения линейных объектов к чертежу границ зон планируемого размещения линейных объектов
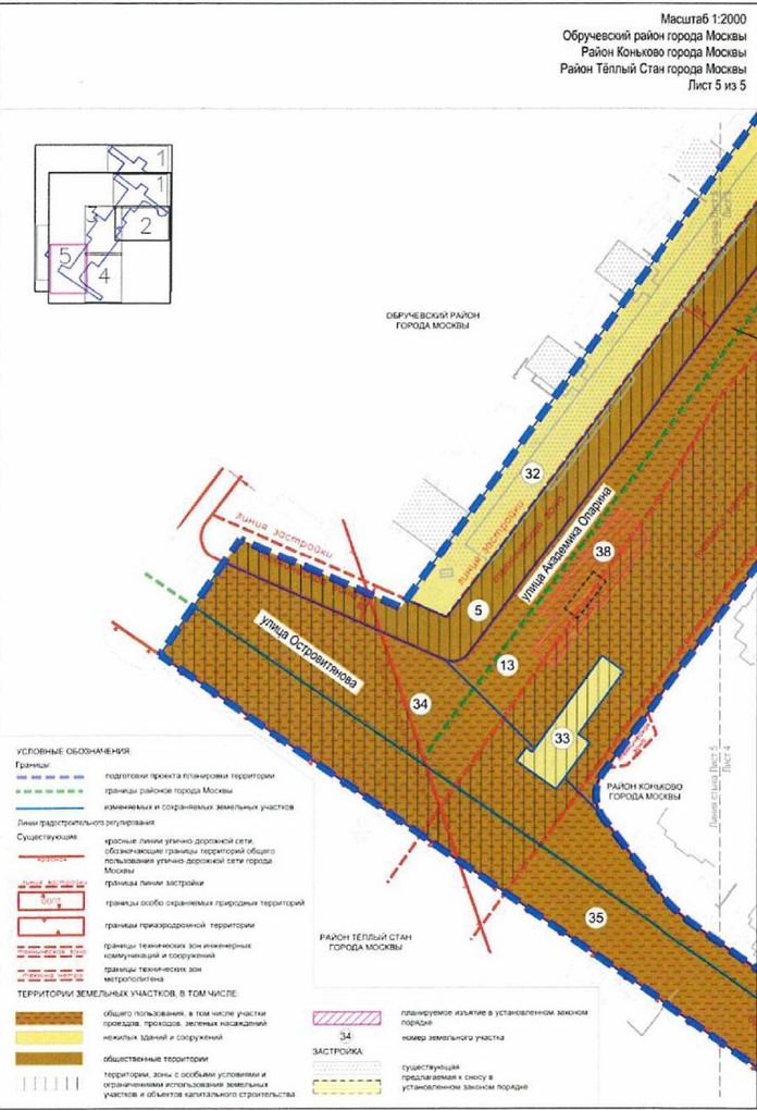
N на чертеже | Назначение зоны планируемого размещения | Наименование объекта | Характеристики объекта | |
Площадь, кв.м | Протяженность, м | |||
1 | 2 | 3 | 4 | 5 |
1 | Зона планируемого размещения объектов улично-дорожной сети | Улица Академика Опарина, улица Миклухо-Маклая, улица Островитянова, проектируемый проезд N 4989 | 150450,0 | 1300,0 |
2.11. Перечень зон планируемого размещения линейных объектов, |
| N на чертеже | Назначение зоны планируемого размещения | Наименование объекта | Площадь, кв.м |
| 1 | 2 | 3 | 4 |
| 1 | Зона планируемого размещения линейных объектов, подлежащих реконструкции в связи с изменением их местоположения | Инженерные коммуникации | 100260,0 |
2.12. Перечень мероприятий по реализации проекта планировки территории и последовательность их выполнения
Мероприятия, предусмотренные проектом планировки территории, планируются к реализации в один этап и включают в себя:
- реконструкция улицы Академика Опарина;
- строительство участка проектируемого проезда N 4989;
- реконструкция участка улицы Миклухо-Маклая;
- размещение остановочных пунктов наземного городского пассажирского транспорта на улице Академика Опарина и улице Миклухо-Маклая;
- формирование сети пешеходных дорожек, тротуаров и велодорожек, велопарковок и станций велопроката;
- устройство наземных пешеходных переходов;
- переустройство инженерных коммуникаций;
- благоустройство территории, в том числе устройство пешеходной лестницы на улице Академика Опарина.
